complete facility labs and clinics
Lab & Specialty Clinics
GOLD’s modular facilities can be designed into Diagnostic Labs and Specialty Clinics .
complete facility labs and clinics
GOLD’s modular facilities can be designed into Diagnostic Labs and Specialty Clinics .
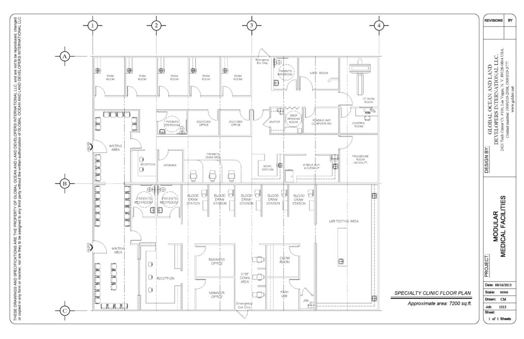
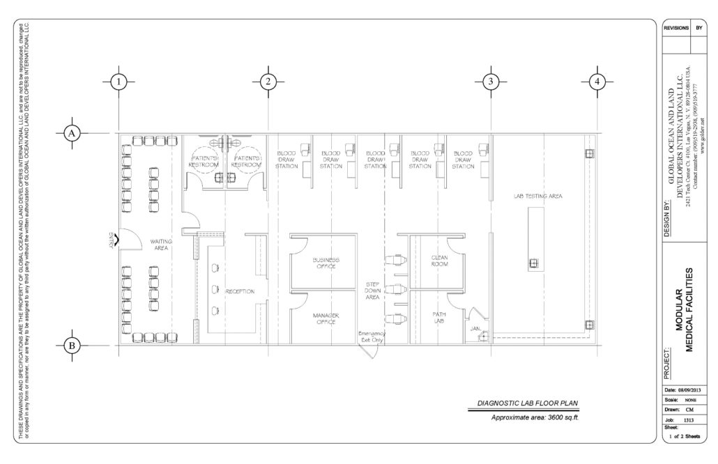
Global Ocean & Land Developers, Inc. know the responsibility of medical care and the quality that individuals deserve. Our modular facilities can be designed into Diagnostic Labs and Specialty Clinics to perform any necessary tests and treatments on patients who need proper care. Facilities can include private draw stations, Isolation / Clean Rooms, Pathology Rooms, large waiting rooms and extra-large lab testing rooms with ultra-modern analyzing equipment. The chemistry analyzing equipment is state-of-the-art and could test for all predetermined blood samples.
Along with the testing labs, specialty clinics with exam rooms, procedure rooms, sterile supply / clean-up areas, patient holding areas, CT scan rooms, x-ray rooms, Digital computer reading rooms, doctors’ offices with direct access to clinical labs are available.
Complete facility labs and clinics would include all medical equipment, supplies, furniture, computer systems, radiology equipment and clinical lab equipment and individualized to meet your specific needs.